Λάρισα, Άγιος Γεώργιος, Τερτσέτη Γεωργίου 1
Προς πώληση διαμερίσματα στον 1ο και 2ο όροφο σε υπό ανέγερση (έναρξη εργασιών Άνοιξη 2026) διώροφη οικοδομή (επί πυλωτής, με υπόγειο και στέγη) σε οικόπεδο 451,12τμ.
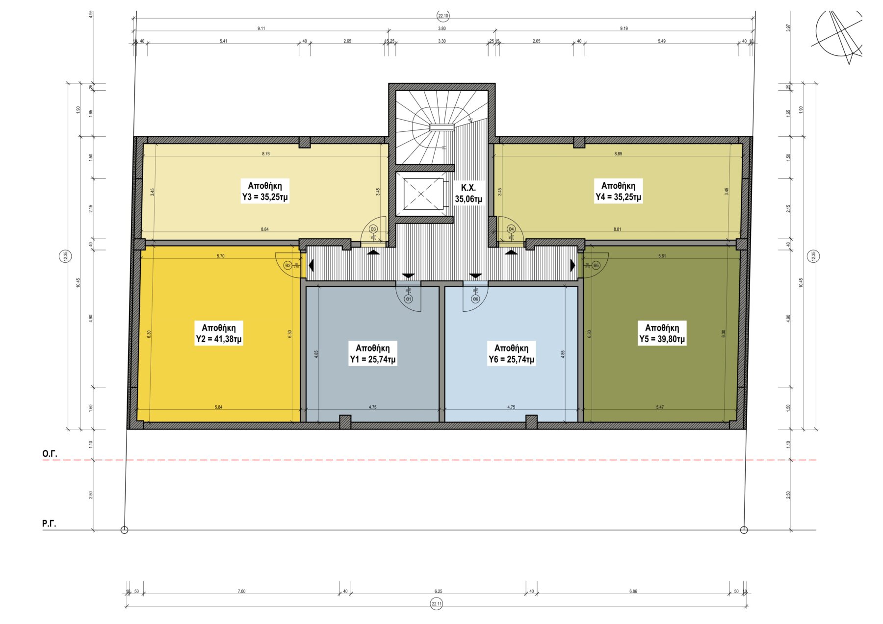
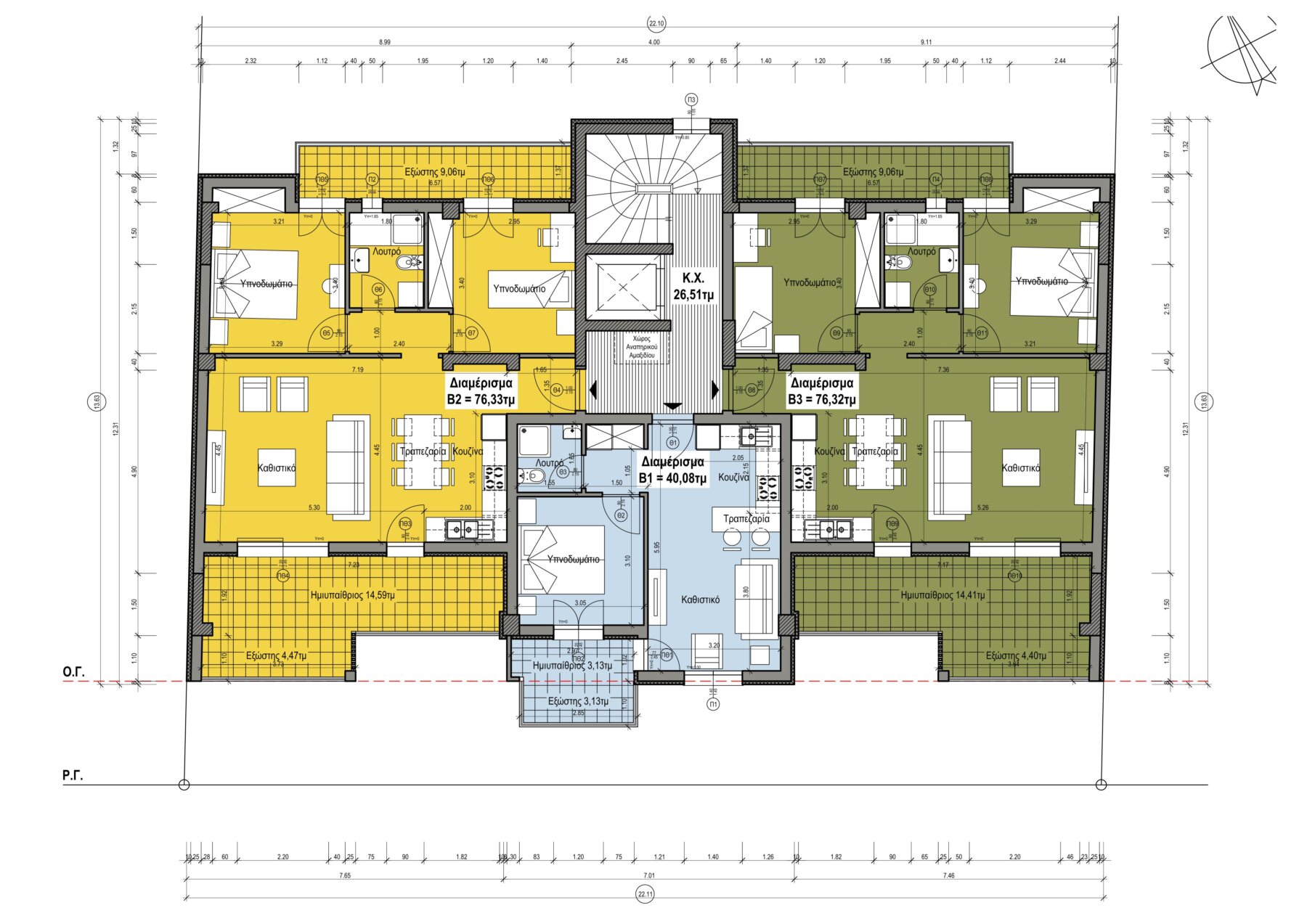
Διαμέρισμα 76,33τμ καθαρής επιφάνειας (99,24τμ μικτής επιφάνειας): διαμπερές με μεγάλες βεράντες 27,82τμ (έχει εξώστη μπροστά 4,36τμ, ημιυπαίθριο μπροστά 14,40τμ και εξώστη πίσω 9,06τμ), αποτελούμενο από 2 υπνοδωμάτια, κουζίνα / τραπεζαρία / καθιστικό (ενιαίος χώρος) και μπάνιο, με ευρύχωρη θέση στάθμευσης αυτοκινήτου στην πυλωτή 12,15τμ (προεγκατάσταση φόρτισης ηλεκτρικού οχήματος συνδεδεμένη στην παροχή του διαμερίσματος) και μεγάλη αποθήκη στο υπόγειο 35,25τμ (με ρεύμα συνδεδεμένο στην παροχή του διαμερίσματος).
Τιμή: 164.000€
Διαμέρισμα 40,08τμ καθαρής επιφάνειας (52,11τμ μικτής επιφάνειας): με βεράντα 6,26τμ (έχει εξώστη μπροστά 3,13τμ και ημιυπαίθριο μπροστά 3,13τμ), αποτελούμενο από 1 υπνοδωμάτιο, κουζίνα / καθιστικό (ενιαίος χώρος) και μπάνιο, με ευρύχωρη θέση στάθμευσης αυτοκινήτου στην πυλωτή 12,15τμ και μεγάλη αποθήκη στο υπόγειο 25,74τμ (με ρεύμα συνδεδεμένο στην παροχή του διαμερίσματος).
Τιμή: 86.000€
Ενεργειακές προδιαγραφές κτιρίου (κέλυφος): Εξωτερική τοιχοποιία από τούβλο πάχους 25εκ (κατακόρυφων οπών με πλήρωση διογκωμένης πολυστερίνης). Επιπλέον, εφαρμογή θερμομόνωσης (θερμοπρόσοψη) στο κέλυφος του κτηρίου πάχους 8 και 10εκ (διογκωμένη πολυστερίνη). Μόνωση δαπέδου προς πυλωτή και οροφής τελευταίου ορόφου πάχους 10εκ (εξηλασμένη πολυστερίνη), καθώς και κατασκευή κεραμοσκεπής. Ενεργειακά κουφώματα (γερμανικής προέλευσης) με διπλούς ενεργειακούς υαλοπίνακες.
Θέρμανση: Ενδοδαπέδια με ατομικό λέβητα φυσικού αερίου.
Ζεστό νερό χρήσης: Ατομικός λέβητας φυσικού αερίου και ηλιακός συλλέκτης.
*Δύο είσοδοι – έξοδοι αυτοκινήτων για τους χώρους στάθμευσης της πυλωτής (βέλτιστη κυκλοφορία οχημάτων), ανελκυστήρας με στάση και στο υπόγειο, πόρτες ασφαλείας στα διαμερίσματα και στην είσοδο της πολυκατοικίας, θυροτηλεόραση και εγκατάσταση συστήματος συναγερμού πυρασφάλειας οικοδομής.
Τοποθεσία: Ευχάριστο και ήσυχο σημείο, πλησίον σε σχολεία, συγκοινωνίες με άμεση πρόσβαση σε κεντρικές αρτηρίες.
Ντίνας Κ. – Σκύφτας Σ.
Κατασκευαστική
Τηλ. Πληροφ.: 693 290 9753




























































